Житловий комплекс «Розенталь» від забудовника «Руником Інвест» – ваш улюблений дім у серці комфорту та сучасності!
Цей затишний комплекс складається із семи енергоефективних семиповерхових будинків, що створюють атмосферу затишку і доброзичливості. Ви та ваша родина зможете насолоджуватись чистим повітрям та зеленими просторами: на території вже активно проводиться озеленення, а також облаштовані дитячі та спортивні майданчики для активного відпочинку!
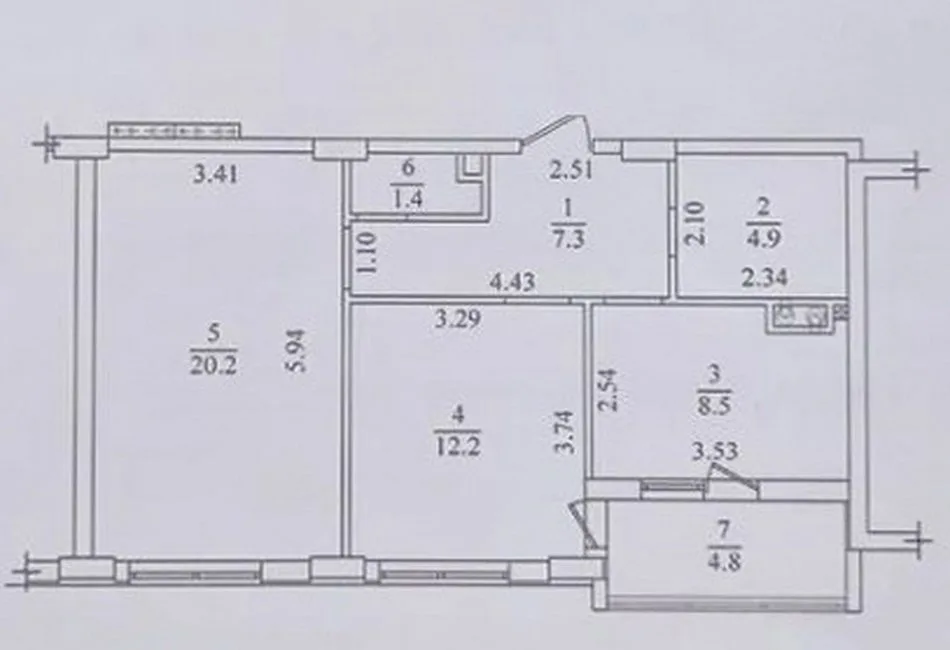
Запрошую вас на перегляд чудової двокімнатної квартири на першому поверсі – ідеальне рішення для молодої сім’ї з малюком! Ви зможете без зусиль пересуватися з коляскою, не турбуючись про ліфт.
Комплекс охоплює власний торговий центр, де у вас завжди буде можливість придбати все необхідне для комфортного життя. У квартирі вже підведені всі комунікації, що робить процес переїзду максимально простим і зручним.
Зворушливе панорамне остеклення лоджії наповнить ваш дім світлом та позитивною енергією. Квартира готова до перегляду, ремонту та вашого швидкого заселення!
Не пропустіть свою можливість – звертайтеся до нас за додатковою інформацією! Ваш новий дім чекає на вас!
Добро пожаловать в жилой комплекс «Розенталь» от строительной компании «Руником Инвест» — идеальное место для вашего нового начала!
Этот уютный комплекс состоит из семи элегантных семиэтажных домов, окружённых зеленью и современными удобствами. Здесь предусмотрены детские и спортивные площадки, а также активно ведётся озеленение вокруг — идеальное пространство для активной жизни и прогулок с детьми.
Предлагаем вам взглянуть на двухкомнатную квартиру на первом этаже — отличный выбор для молодой семьи с новорождённым. Забудьте о проблемах с подъемом и спуском на лифте: всё под рукой, и ваш малыш всегда на виду.
Комплекс располагает собственным торговым центром, что гарантирует доступность всех необходимых удобств в шаговой доступности. Квартира готова к просмотру и к продаже — это ваш шанс сделать ремонт по своему вкусу и мгновенно переехать в новый дом!
Все коммуникации подведены, а в зоне лоджии вас порадует большое панорамное остекление, которое открывает великолепный вид и наполняет пространство светом.
Не упустите возможность стать частью этого замечательного района! Для подробной информации и записи на просмотр обращайтесь по указанным контактам. Ваш новый дом ждёт вас!
Welcome to the charming "Rosenthal" residential complex by Runnikom Invest!
This inviting community features a delightful collection of seven tidy, seven-story buildings. Families will love the thoughtfully designed children's and sports playgrounds, along with the ongoing greenery enhancements in the surrounding areas.
We are excited to present a fantastic opportunity to view a cozy two-bedroom apartment located on the first floor—an ideal choice for young families with little ones, as you won’t have to navigate stairs or elevators with a stroller!
The complex boasts its own shopping center, adding convenience right at your doorstep. This apartment is ready for you to explore, purchase, renovate, and make your own! All utilities are connected, and the spacious loggia features stunning panoramic windows that fill the space with natural light.
Interested? Don't hesitate to reach out for more details or to schedule your visit!