Оригінальна та неповторна квартира мрії!
Продається розкішний 2-рівневий пентхаус площею 220 кв.м. у новому елітному будинку від забудовника Гефест, розташованому в історичному центрі міста (район Грецька / Рішельєвська / Пушкінська). Це малоквартирний будинок, що підкреслює ваш статус!
Величезна тераса з захоплюючим видом на порт та філармонію – ідеальне місце для відпочинку та незабутніх вечірок!
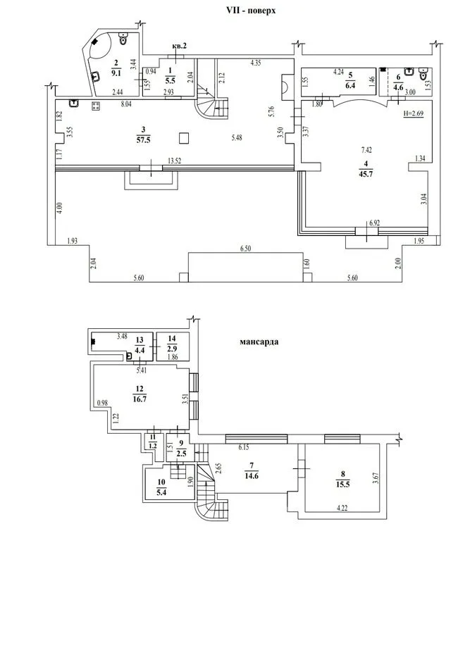
На першому рівні вас зустрічає простора кухня-гістона площею 57 квадратних метрів з затишним каміном і виходом на терасу. Також тут знаходиться стильний санвузол з джакузі та майстер-спальня із власним санвузлом та гардеробною кімнатою.
Другий рівень дарує вам справжній комфорт: спальня з панорамними вікнами, які заливають простір світлом, та ще одна майстер-спальня з власним санвузлом, гардеробною кімнатою та сауною – ваше особисте місце для релаксації.
Всего лише 2 квартири на поверсі забезпечують вам максимальну приватність та комфорт.
У вашому розпорядженні підземний паркінг, консьєрж та охорона – все, щоб ви почувалися безпечно та затишно. Не втрачайте шанс стати власником цієї ексклюзивної нерухомості!
Великолепная возможность стать владельцем уникального 2-уровневого пентхауса площадью 220 кв.м. в сердце исторического центра города! Этот самобытный интерьер, расположенный в престижном и малоквартирном доме от известной строительной компании Гефест, предлагает вам нереальное сочетание комфорта и стиля.
Представьте, как вы наслаждаетесь утренним кофе на большой террасе, откуда открывается захватывающий вид на порт и здание филармонии! Просторная кухня-гостиная площадью 57 метров с элегантным камином и выходом на террасу станет истинной изюминкой вашего дома, идеальной для встреч с друзьями и семейных праздников.
На первом уровне также располагаются уютная мастер-спальня с собственным санузлом и гардеробной, а также стильный санузел с джакузи, где вы сможете расслабиться после долгого дня.
Поднимитесь на второй уровень, и вы будете приятно удивлены — здесь находится спальня с панорамными окнами на крыше, наполняющая пространство светом и воздухом, а также еще одна мастер-спальня с собственным санузлом, гардеробной и баней для идеального отдыха.
Всего две квартиры на этаже гарантируют вам уединение и комфорт. Ваши автомобили будут в безопасности в подземном паркинге, а услуги консьержа и охраны обеспечат высокий уровень обслуживания.
Не упустите шанс стать владельцем этого прекрасного пентхауса, где каждая деталь продумана до мелочей! Звоните прямо сейчас для организации просмотра!
Discover your dream home in this stunning original apartment!
Now available is a magnificent 2-level penthouse spanning 220 sq.m in a new prestigious building by Gefest, nestled in the historic heart of the city (between Greek, Richelieu, and Pushkin streets). This exclusive low-rise residence boasts only a few select apartments!
Step onto the expansive terrace and take in breathtaking views of the port and philharmonic hall.
On the first level, you'll find a spacious 57 sq.m kitchen-living room featuring a cozy fireplace and direct access to the terrace, ideal for entertaining or enjoying a quiet evening. This level also includes a stylish bathroom with a luxurious jacuzzi, plus a master bedroom complete with its own ensuite and walk-in closet.
The second level is a private retreat, offering a bedroom with panoramic skylight windows and another master bedroom featuring its own bathroom, walk-in closet, and a relaxing sauna.
With only two apartments per floor, enjoy the privacy and exclusivity that this beautiful residence provides. Additional amenities include underground parking, a concierge service, and 24/7 security.
Don’t miss out on this exceptional opportunity to own a slice of luxury in the heart of the city!